单位 : mm
| 型号 | L | L1 | L2 | 承受载荷(N/对) 1万次/10万次*1 |
重量*2 (g) |
CAD下载 | 请求报价 |
|---|---|---|---|---|---|---|---|
| TSCC-800-M | 800 | 806 | 1594 | 3100 / 2175 | 3900 | CAD | 请求报价 |
*1: 滑轨开关一个往复为1次。使用所有安装孔时的参考值。减少固定部位时,承受载荷将减少。
详情请参考技术资料。
*2: 每个的质量。单位 : mm
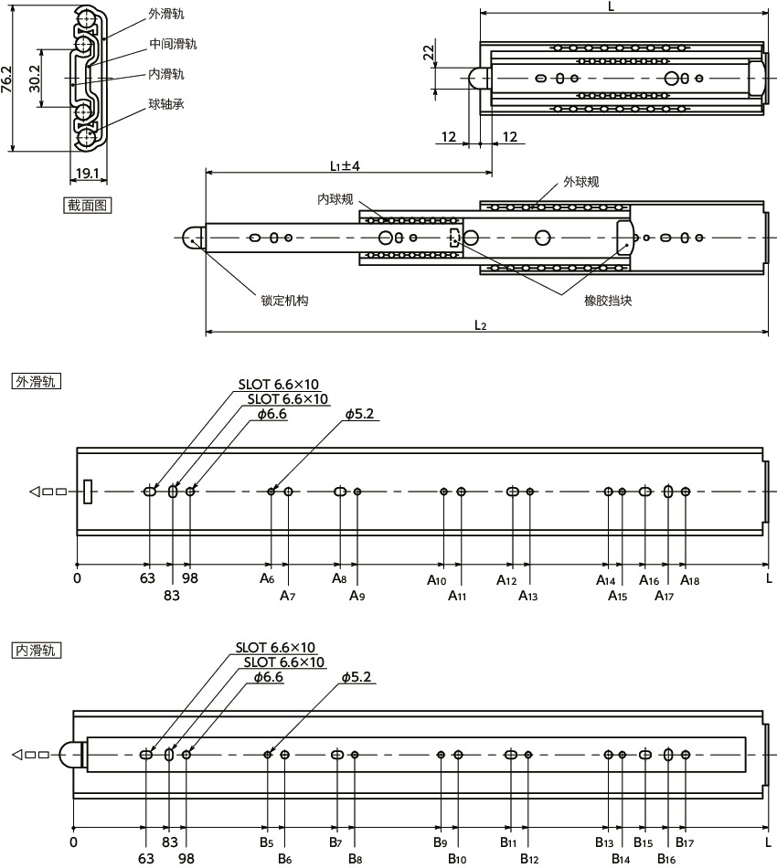
| 型号 | A6 | A7 | A8 | A9 | A10 | A11 | A12 | A13 | A14 | A15 | A16 | A17 | A18 | B5 | B6 | B7 | B8 | B9 | B10 | B11 | B12 | B13 | B14 | B15 | B16 | B17 |
|---|---|---|---|---|---|---|---|---|---|---|---|---|---|---|---|---|---|---|---|---|---|---|---|---|---|---|
| TSCC-800-M | 313 | 328 | 463 | 478 | - | - | - | - | 661 | 673 | 693 | 713 | 728 | 313 | 328 | 498 | 513 | - | - | - | - | 661 | 673 | 693 | 713 | 728 |
材质、表面处理
| TSCC-M | |
|---|---|
| 主体 | 钢 三价铬酸盐处理 |
| 球轴承 | 钢 淬火 |
| 外球规 内球规 |
聚乙烯 |
| 橡胶挡块 | 弹性体 |
| 锁定机构 | 锌压铸件 |
| 尼龙6 |
特点
- 三段抽拉式滑轨。
- 行程量大约为全闭时长度(L尺寸)的100%。
- 利用特有的树脂制球规提高滑轨的操作性。
- 带用于缓和冲击的橡胶挡块。抑制操作音,防止故障、损坏。
- 带全闭时可锁定的关闭锁定机构。按下绿色的手柄,锁定解除。

- 在滑轨上将工具孔配置在与安装孔重叠的部分,确保即使滑轨重叠时也能使用工具安装。*1
- 本产品为单个销售。可以在TSCC-M之间、以及和TSCC-BTSCC-KTSCC-Q组合。TSCC-BTSCC-KTSCC-Q
- 可安装在左右任意一侧。
*1: 虽然形状图中只标出安装孔,但可能还会存在其他孔。
用途
抽屉、滑动门、柜子各类工业设备、车辆设备、家具等
安装
请使用所有外滑轨的安装孔(φ6.6、φ5.2)和内滑轨的安装孔(φ6.6、φ5.2),以获得足够的承受载荷性能。长孔请在位置调整时使用。
安装时请使用以下螺丝。安装方法请确认技术资料。

| 安装用推荐螺丝 | 内滑轨 | 外滑轨 |
|---|---|---|
| 内六角圆头螺栓 | M5/M6 | M5/M6 |
| 内六角短头螺栓 | M5 | M5 |
推荐螺丝强度等级:8.8
使用注意事项
- 请勿以超出最大滑动速度0.3m/s的速度使用,否则可能会导致故障、破损。并且,在关闭时请以0.15m/s以下的速度操作。
- 如果在关闭时施加较大冲击,请另行准备用于吸收冲击的挡块。
- 可使用温度为-20℃~100℃。在达到上限、下限温度的环境下,请确认滑轨动作是否正常。
- 使用前,请仔细阅读技术资料中的安全注意事项、使用注意事项,正确、安全地使用。










