尺寸・CAD
单位 : mm
| 型号 | 最大夹紧扭矩 (N・m)*1 |
夹紧力 FS(N)*1 |
保持力 FH(N)*1 |
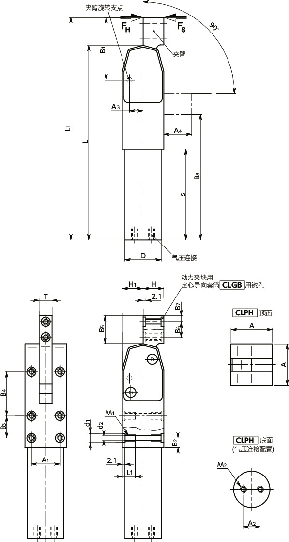
A | A1 | A2 | A3 | A4 | B1 | B2 | B3 | B4 | B5 | B6 | B7 | B8 | D | d1 | d2 | M1 | M2 | L | L1 | Lf | H | H1 | T | s | 质量 (g) |
CAD下载 | 请求报价 |
|---|---|---|---|---|---|---|---|---|---|---|---|---|---|---|---|---|---|---|---|---|---|---|---|---|---|---|---|---|---|---|---|
| CLPH-50 | 475 | 4900 | 12331 | 62 | 44 | 35 | 21.5 | 44 | 96.5 | 12 | 47 | 71.5 | 44 | 27 | 8 | 174 | 60 | 13 | 8.5 | M10 | G1/8 | 279 | 323 | 21 | 31 | 31 | 18 | 110.5 | 4000 | CAD | 请求报价 |
*1: 0.6MPa时
构造

材质、表面处理
| CLPH | |
|---|---|
| 主体 | 钢(相当于S45C) 无电解镀镍 |
特点
- 气压式高性能夹块。用于工件的夹紧、保持、夹持、定位。
- 小巧但具备大夹持力。当主体垂直安装时,夹紧力在水平方向产生。
- 最大夹紧力发生在夹臂到达行程末端时。为了获得较高的夹紧力,请尽量使夹臂在靠近行程末端的位置夹紧。
- 夹臂超过一定位置时,自保持机构会将其保持在夹紧位置。
- 夹紧臂高速工作,但在行程末端附近减速,因此通常不需要进行气压减压等速度调整。
- 长寿命。(参考寿命2000万次)
- 夹紧机构内置滚针轴承,可减少磨损。
- 气压缸和夹紧机构一体化,具有高坚固性。
-
常规使用压力:0.6MPa
最大可使用压力:1MPa
使用注意事项
- 请在主体周边设置安全装置(保护栅栏等)。
- 使用前,请确保遵守与使用目的相关的注意事项(安全注意事项、是否有经过培训的具备相关资格的人员、供应气压)。
- CLPH没有安全装置。
- 在安装夹臂时,有夹住或挤压手指的危险。在夹紧动作过程中,请勿触摸CLPH。进行夹臂作业时,请先切断气压供应。
- 供给气压不要超过1MPa。常规使用压力为0.6MPa。
- 夹紧状态下会产生很高的夹紧力,机械自保持机构在气压供给中断时也能维持夹紧力,因此设备的紧急停止按钮不能解除夹紧。
- 手动松开夹具的自保持机构可能会导致夹臂突然打开。因此,绝对不要触及夹臂的活动范围。
- CLPH内置了夹紧动作时的末端位置阻尼器,在末端位置附近会减速,但没有内置夹紧解除动作时的末端位置阻尼器,因此在夹紧解除动作时不会减速。因此,在解除夹紧动作时,夹紧臂所承受的扭矩不能超过表中的最大允许扭矩值。
| 型号 | 最大容许扭矩(N・m) |
|---|---|
| CLPH-20 | 1 |
| CLPH-32 | 1.25 |
| CLPH-40 | 1.5 |
| CLPH-50 | 3 |
- 如果出现故障,请勿操作CLPH。请在关停机器、不施加气压的状态下进行维护。维护结束后,请将所有保护装置以正确的工作状态重新安装。
安装
CLPH使用安装螺丝和动力夹块用定心导向衬套CLGB进行安装。可以直接安装在内部的螺丝孔中,也可以作为通孔安装。也可以使用动力夹块用夹紧环CLCA直接安装在动力夹块的气缸上。气压由动力夹块底部的气压连接供给。从标有(+)的气压连接处供给气压时即夹紧,从标有(-)的气压连接处供给气压时则可以解除夹紧。
详细情况请确认使用说明书。*1
*1: 使用说明书只有英文版。
使用例













